Artikel-Nummer: 1.494
Kontrakt: Tradegoria
Registernummer: 5-0666472/001
Registernummer: 5-0666472/001
Verkauf von Grundstücken mit Projekt in Herceg Novi
Standort
Herceg Novi
Landfläche
784Meter2
Datum der Aktualisierung
30.08.2023
Preis
70 000 €
Preis pro m2
89 €
Herceg Novi. Sushchepan. Verkauf eines Grundstücks mit Projekt
Grundstück mit genehmigtem Villenprojekt auf Sushcepan,
Mit einer Fläche von 784 m2.
Straße, Wasser, Strom.
Es muss eine Klärgrube gebaut werden.
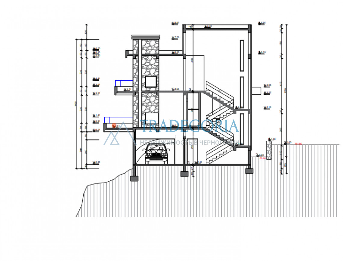
Genehmigtes Projekt einer Villa mit einem Pool von ca. 300 m2 + Panorama-Dachterrasse.
Schicker Panoramablick auf das Meer, ruhige Gegend.
Grundstück mit genehmigtem Villenprojekt auf Sushcepan,
Mit einer Fläche von 784 m2.
Straße, Wasser, Strom.
Es muss eine Klärgrube gebaut werden.
Genehmigtes Projekt einer Villa mit einem Pool von ca. 300 m2 + Panorama-Dachterrasse.
Schicker Panoramablick auf das Meer, ruhige Gegend.
Das Kopieren und der Nachdruck von Materialien ist nur gestattet, wenn die Quelle, nämlich unsere Website, angegeben wird. tradegoria.me